16401 San Pablo Ave 224
San Pablo, CA 94806

Scroll to Content

Details

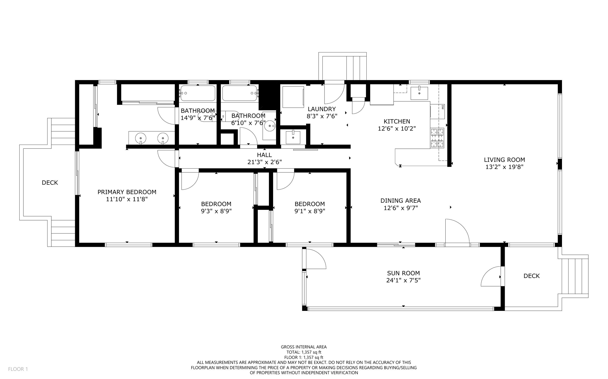
• Updated Mobile Home in Tara Hills Mobile Manor Senior Park
• 3 Bedroom / 2 Bath 1,200 Sq Ft Recently Renovated Home
• Includes Large Enclosed Sun Porch & New Decks
• Enjoy the Afternoon Breezes from the Golden Gate
• Updated Kitchen & Baths with New Counters, Sinks & Fixtures
• New Luxury Vinyl Laminate Flooring Throughout
• New Stainless Refrigerator, Gas Range, Dishwasher & Kitchen Sink
• Dual-Paned Windows & Sliders, Washer/Dryer & New Gas Water Heater
• Resort Style Living in the San Francisco Bay Area
• Detached Shed for Storage & much more …
• Community Amenities include:
• Year-Round Heated Pool, Spa & Sauna
• Community Center with Meeting Rooms, Kitchen
• Library, Game Room & Activities
• Close to Parks, Open Space, Hiking & Biking Trails
• Easy Access to I-80, I-580, Hwy 4, BART & AMTRAK

  • $150,000
  • 3 Bedrooms
  • 2 Bathrooms
  • 1,200 Sq/ft
  • 2 Parking Spots
  • Built in 1968
  • MLS: 41110622

Images

Floor Plans

3D Tour

Content Coming Soon